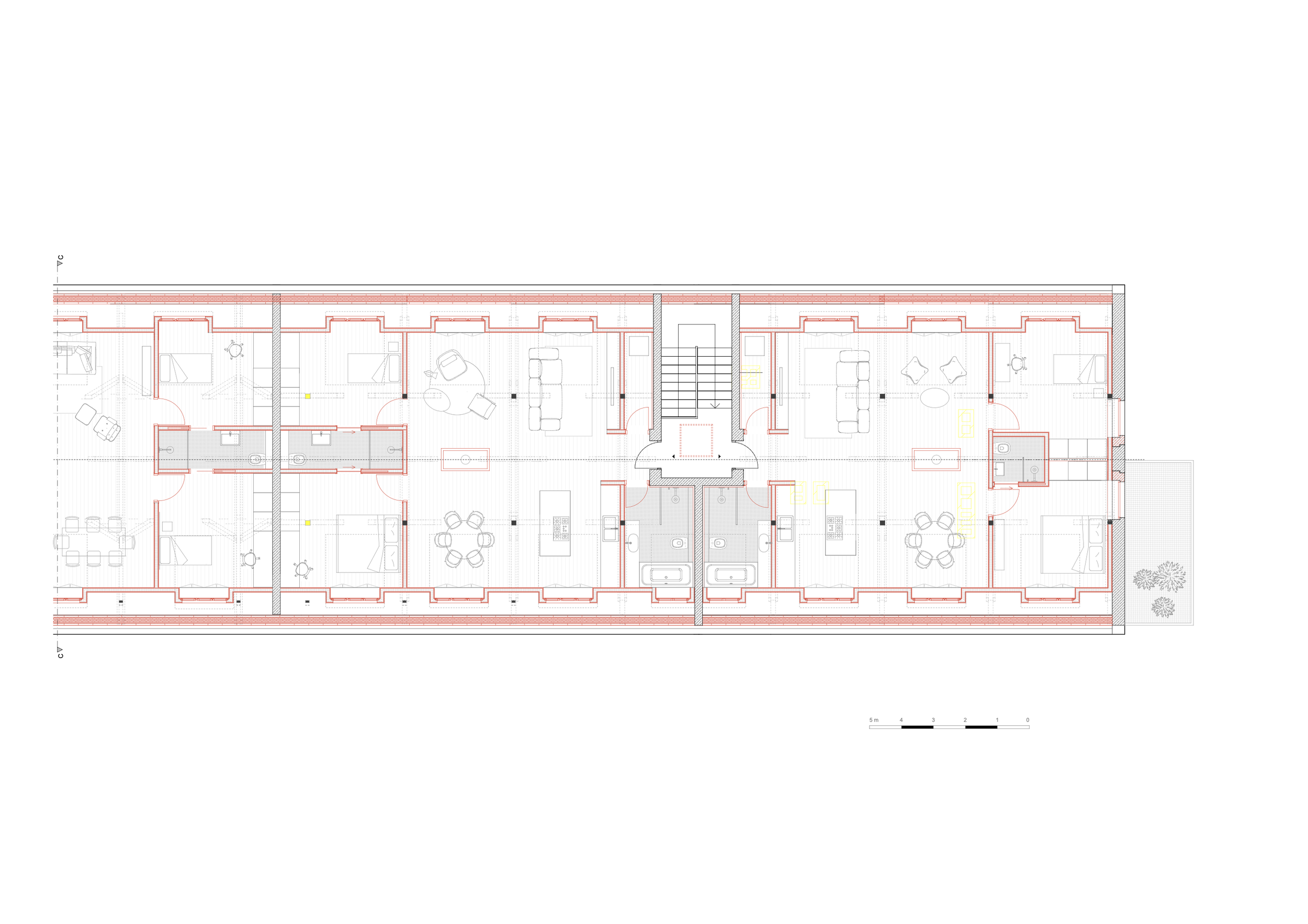
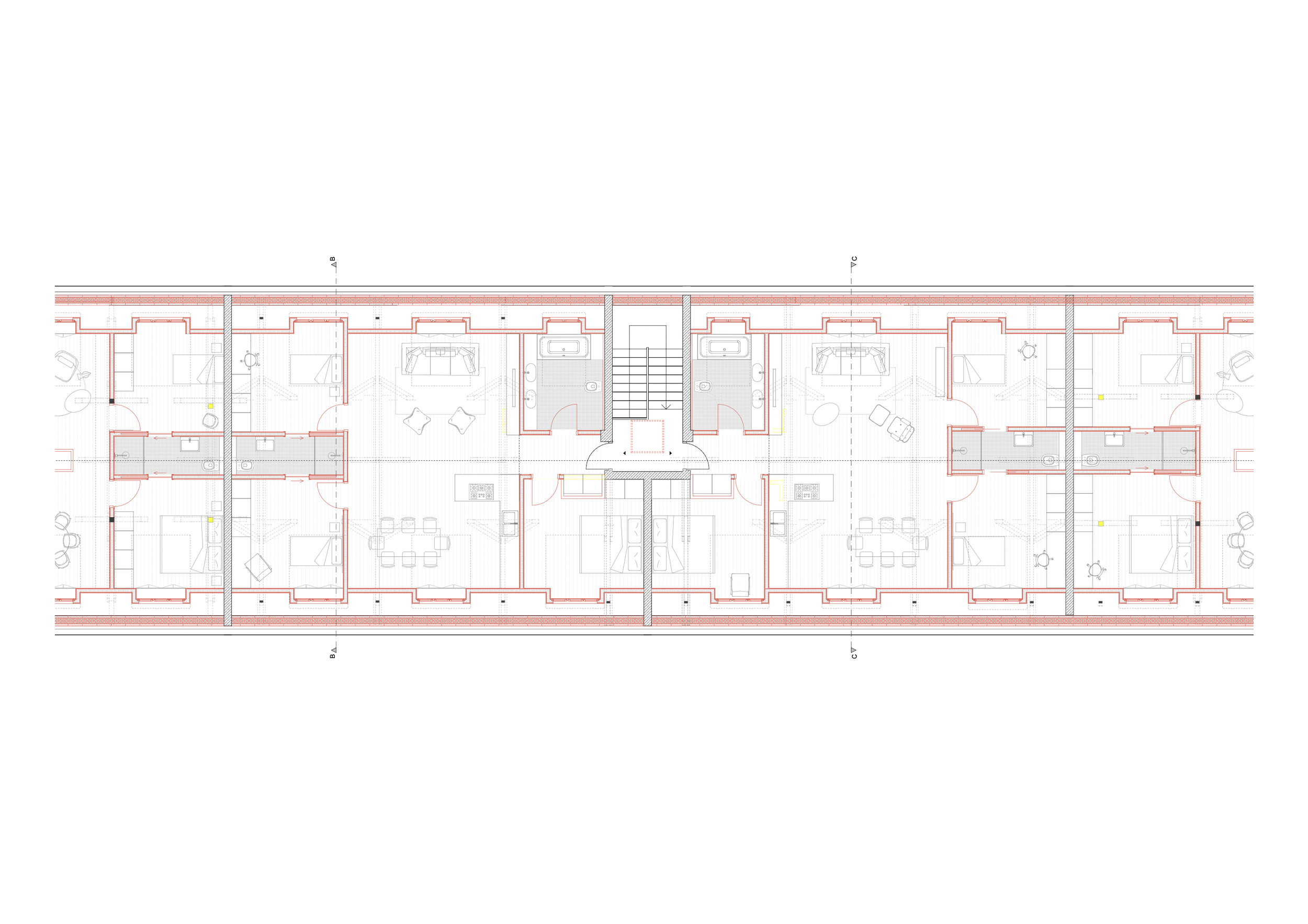
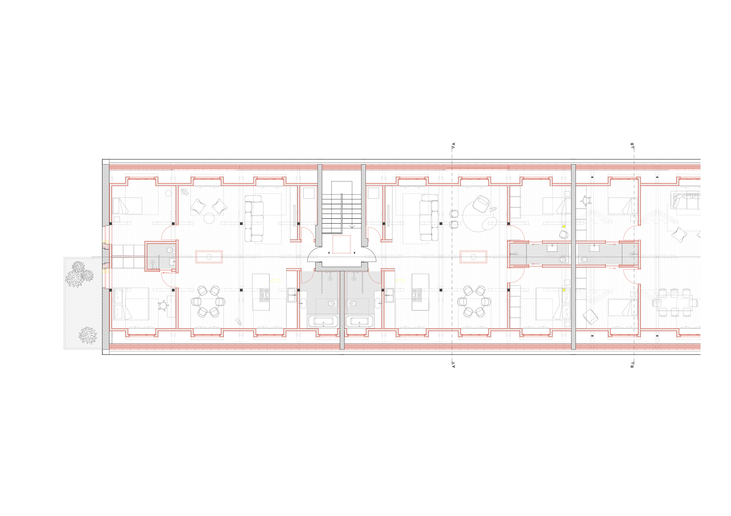
TEW / Dachgeschossausbau Berlin, Zehlendorf Architekt: SMZ-ABauherr: privatAusführung laufend 2024 - LP 1-9 - Denkmal - 8 Wohnungen Slide 1 Slide 1 (current slide) Slide 2 Slide 2 (current slide) Slide 3 Slide 3 (current slide) Slide 4 Slide 4 (current slide) Slide 5 Slide 5 (current slide)